Estabelecimentos comerciais Wien Leilão / Foreclosure Áustria | Geschäftslokal - Zwangsversteigerung

Geschäftslokal - Zwangsversteigerung 

reedb-id: 1299145
#EstabelecimentosComerciais #EstabelecimentosComerciais #Foreclosures #Wien #Morrendo #Áustria
Información de contacto :
Versteigerungsdatum und -zeit: am 14.01.2026 um 11:00 Uhr
Versteigerungsort: Bezirksgericht Döbling, 2. Stock, Verhandlungssaal H
Estabelecimentos comerciais Wien Leilão / Foreclosure Áustria
Estabelecimentos comerciais Wien Leilão / Foreclosure ÁustriaEstabelecimentos comerciais Wien Leilão / Foreclosure ÁustriaEstabelecimentos comerciais Wien Leilão / Foreclosure ÁustriaEstabelecimentos comerciais Wien Leilão / Foreclosure ÁustriaEstabelecimentos comerciais Wien Leilão / Foreclosure ÁustriaEstabelecimentos comerciais Wien Leilão / Foreclosure ÁustriaEstabelecimentos comerciais Wien Leilão / Foreclosure ÁustriaEstabelecimentos comerciais Wien Leilão / Foreclosure Áustria | QR-CODE ...

Estabelecimentos comerciais
Foreclosures
estimado, valor de mercado € 623 000 (≈ US$  723 000) 
AT-1180 Wien, Morrendo, Währinger Gürtel 5
Wien, Áustria

 
 
  
Áreas
área de vendas4.234,74 pé
Descrição
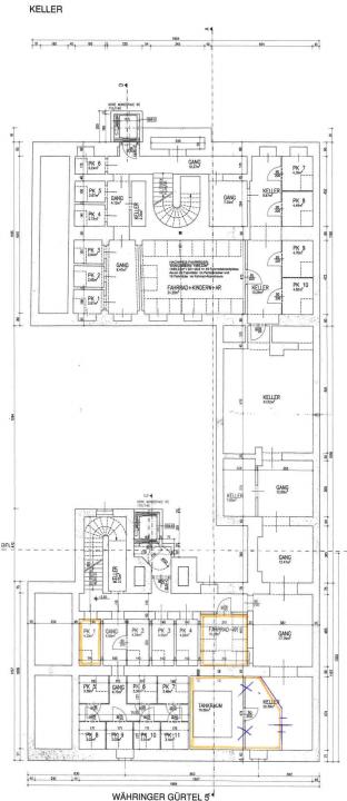
Geschäftslokal mit Lager-, Werkstatt-, und Sanitärflächen im Erdgeschoß.
Im Grundbuch 3 getrennte Wohnungseigentumseinheiten,
in Natur mit Durchbrüchen räumlich verbunden und als wirtschaftliche Einheit gemeinsam vermietet.
Heizung und Klimatisierung über Einzelsplitgeräte, welche auf dem straßenseitigen Vordach montiert sind.
Derzeitige Ausstattung durch Investitionen des Mieters.
Top Werkstatt/Lager in Natur größer ausgeführt als in den baugenehmigten Plänen erfasst.
Die grundbücherlich zugeordneten Kellerabteile konnten in Natur nicht verifiziert werden. Im Grundrissplan sind die benützten Kellerabteile markiert.

Vadium: 62.300,00 EUR
Geringstes Gebot: 311.500,00 EUR
posição
#Morrendo
renúncia
Todos os dados são aprox. Dados.

Die Daten zu diesem Objekt /Immobilie wurden manuell (nicht vom Anbieter) eingepflegt.
Für Vollständigkeit und Richtigkeit der Angaben kann keine Haftung übernommen werden.
Die aktuellen Daten entnehmen Sie gegebenenfalls von der angegebenen Seite oder setzen
Sie sich mit dem Anbieter in Verbindung.
rss feed Digg.com Folkd Reddit Linkarena

Anúncios

load datadata load ...