www.reedb.com 1031 V 16.1.e   immobiliare, immobili commerciali e abitazioni powered by reedb.com

Zinshaus - Zwangsversteigerung 

reedb-id: 1298738
Informazioni di contatto:

Versteigerungsdatum und -zeit: am 28.11.2025 um 09:30 Uhr
Versteigerungsort: Bezirksgericht Hernals, 1170 Wien, Kalvarienberggasse 31, 4. Stock, Saal F 

Casa plurifamiliare
Pignoramenti
stimato, Stati valore di mercato € 1 930 000 (≈ US$  2 240 000) 
AT-1170 Vienna, Ernali, Mariengasse 38
Vienna, Austria


Casa plurifamiliare Vienna Asta / preclusione Austria

Casa plurifamiliare Vienna Asta / preclusione Austria

Casa plurifamiliare Vienna Asta / preclusione Austria

Casa plurifamiliare Vienna Asta / preclusione Austria

Casa plurifamiliare Vienna Asta / preclusione Austria

Casa plurifamiliare Vienna Asta / preclusione Austria

Casa plurifamiliare Vienna Asta / preclusione Austria

Casa plurifamiliare Vienna Asta / preclusione Austria

Casa plurifamiliare Vienna Asta / preclusione Austria

Casa plurifamiliare Vienna Asta / preclusione Austria
QR-CODE ...
Casa plurifamiliare Vienna Asta / preclusione Austria | QR-CODE ...
Finanza
Aree
vivere lo spazio7.597,28 piedi quadrati
proprietà0,08 acro
Descrizione
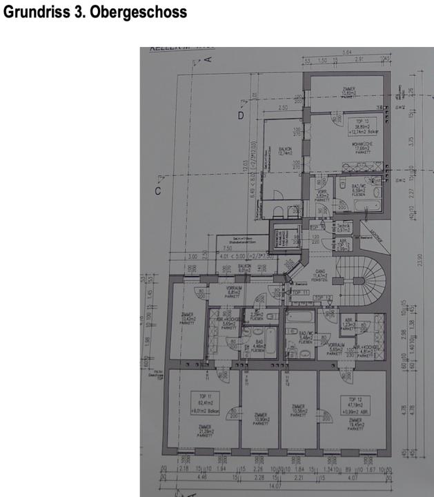
Im Rahmen der Befundaufnahmen konnten teilweise die allgemein zugänglichen Flächen sowie die nachstehenden Mietobjekte besichtigt werden: Top 2, 5, 7, 8, 9, 10, 11, 12, 13, 15.
Es wird eingangs darauf hingewiesen, dass bei einzelnen besichtigten Bestandseinheiten nicht alle erforderlichen Ausstattungskategoriemerkmale der Ausstattungskategorie A vorhanden waren. Hinsichtlich der nicht besichtigten Objekte kann keine Aussage über deren Ausstattungs- und Erhaltungszustand getroffen werden.
Über die elektrische Anlage kann keine Aussage getroffen werden. Es erfolgte außerdem keine Überprüfung der Einhaltung diverser baurechtlicher Vorschriften (zB. WrBO, OIB-Richtlinien, ÖNormen, DINormen, Elektrotechnikverordnung) sowie der Bauphysik, Statik usw. Es kann weiters keine Aussage über die Qualität der Feuchtraumisolierungen getätigt werden.

Vadium: 193.000,00 EUR
Geringstes Gebot: 1.670.000,00 EUR
posizione
#Ernali
Esonero di responsabilità
Tutti i dati sono ca. Dati.

Die Daten zu diesem Objekt /Immobilie wurden manuell (nicht vom Anbieter) eingepflegt.
Für Vollständigkeit und Richtigkeit der Angaben kann keine Haftung übernommen werden.
Die aktuellen Daten entnehmen Sie gegebenenfalls von der angegebenen Seite oder setzen
Sie sich mit dem Anbieter in Verbindung.